건너뛰기 메뉴



입찰 내역

입찰 내역

[입찰공고] 2025년 군포환경관리소 폐열보일러 산세정공사 소액수의 견적제출 공고

작성자
계약담당자
등록일자
2025년 10월 10일 14시 48분 8초
조회
141

[입찰공고] 2025년 군포환경관리소 폐열보일러 산세정공사 소액수의 견적제출 공고

공고명: 2025년 군포환경관리소 폐열보일러 산세정공사 소액수의 견적제출 공고

조달청 공고번호: R25BK01081375-000

  1. HWPX 파일 2025년 군포환경관리소 폐열보일러 산세정 공사 소액수의 견적제출 공고문.hwpx [ Size : 139.71KB , Down : 248 ] 다운로드
  2. XLSX 파일 2025년 군포환경관리소 폐열보일러 산세정공사 산출내역서-공고용.xlsx [ Size : 1.14MB , Down : 241 ] 다운로드
  3. HWPX 파일 2025년 군포환경관리소 폐열보일러 산세정공사 시방서.hwpx [ Size : 121.18KB , Down : 239 ] 다운로드
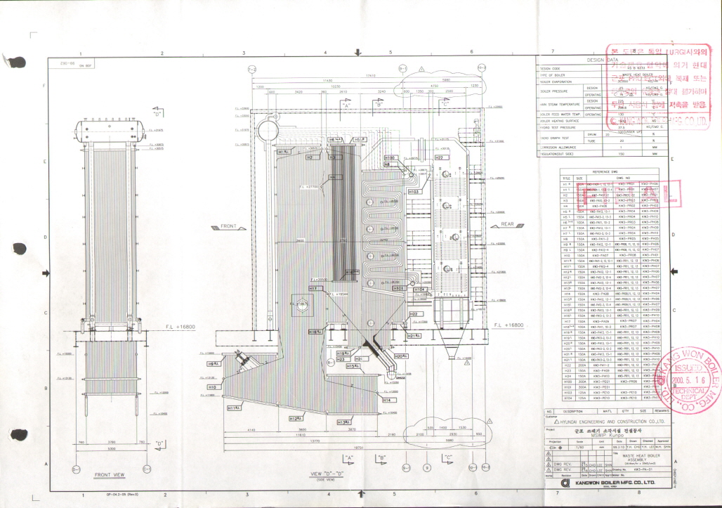
  4. JPG 파일 군포환경관리소 폐열보일러 및 드럼 도면.jpg [ Size : 473.49KB , Down : 101 ] 미리보기 다운로드

목록보기